您的位置:兰州装修网 >小区楼盘 >鸿运润园一期

鸿运润园一期 (47550人浏览)本楼群盘QQ群 :

楼盘主页 设计方案 楼盘详情 实景图 户型图 样板间 在建工地

方案提供者: 冯不逢

简欧风格 149㎡ (552人看了此方案) 喜欢这个风格?找TA设计预约设计师

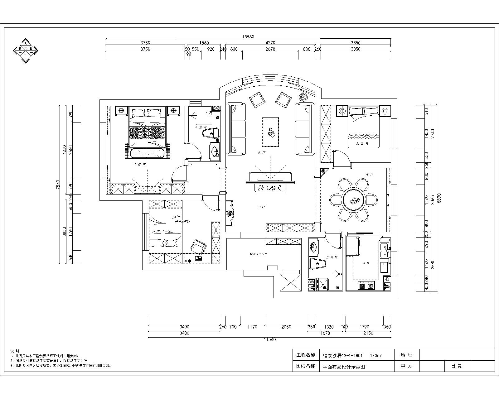
设计思路|平面布置图|设计图

设计思路

欧式强调线形流动的变化,色彩华丽。它在形式上以浪漫主义为基础,装修材料常用大理石、多彩的织物、精美的地毯,精致的法国壁挂,整个风格豪华、富丽,充满强烈的动感效果。另一种是洛可可风格,其爱用轻快纤细的曲线装饰,效果典雅、亲切,欧洲的皇宫贵族都偏爱这个风格

免费装修设计

装修公司排行榜

设计师排行榜

工长排行榜